︎
erik langdalen arkitektkontor
Works
About
Contact
︎
erik langdalen arkitektkontor
2005
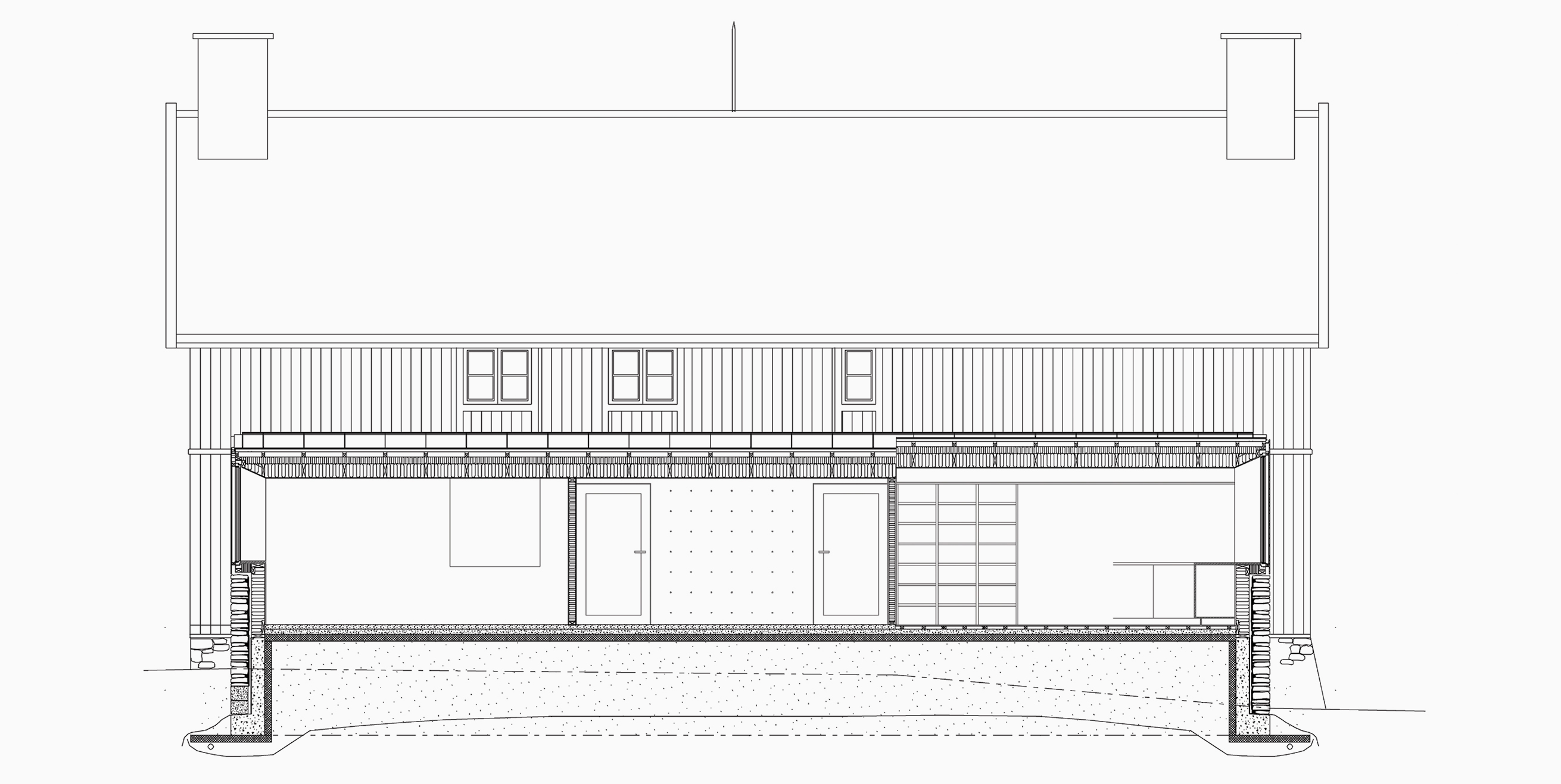
Addition Grotli mountain lodge
Housing
What
House addition
Client
Private
Where
Grotli, Strynefjell, Norway
Team
Erik Langdalen, Hege Maria Eriksson, Stian Schjelderup