︎
erik langdalen arkitektkontor
Works
About
Contact
︎
erik langdalen arkitektkontor
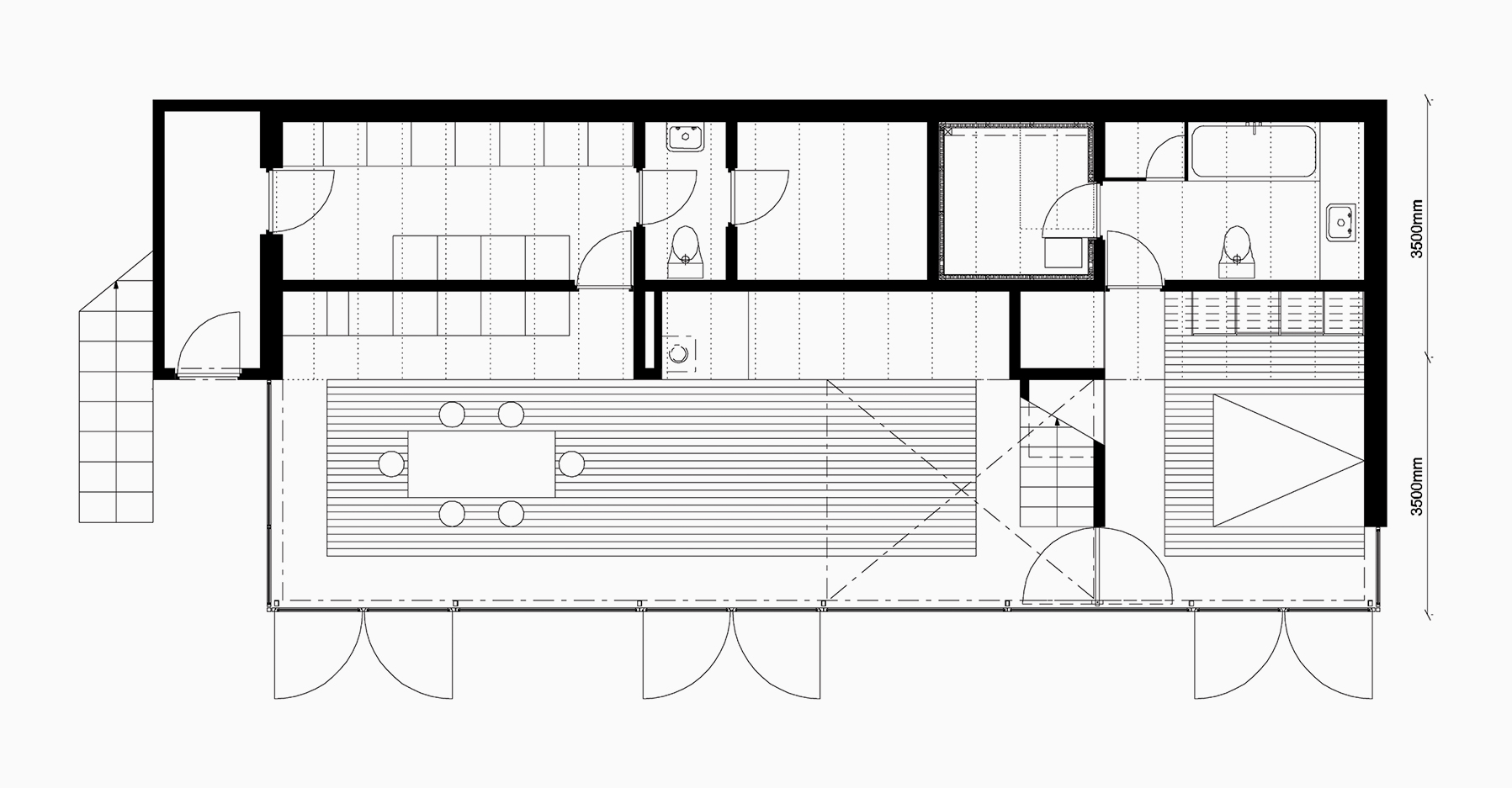
2004
Shingles House
Housing
What
Single-family home
Client
Private
Where
Nittedal, Norway
Team
Hege Maria Eriksson, Erik Langdalen, Stian Schjelderup